Neubau | Lessingstraße 83
Büro- & Gewerbeflächen –
Raum für Ideen
Auf dem denkmalgeschützten Areal der ehemaligen Borsig Fabrik in Berlin Pankow – heute „Pankow Park“ – hat sich ein lebendiges Gewerbegebiet entwickelt. Hier werden Nahverkehrs- und Regionalzüge hergestellt, Kraftwerks-Generatoren überholt, die Tourneen internationaler Rock Gruppen vorbereitet, das Facility Management für Wohn- und Industrieanlagen organisiert und junge Maschinenbauer:innen ausgebildet. Namhafte Großunternehmen wie Stadler Rail, ABB, GM Power, WISAG, Piepenbrock und Black Box Music sind am Standort ansässig. Daneben gibt es eine Vielzahl von kleineren Firmen, Startups, Künstler:innen, Ingenieur:innen und Freelancer aus allen Bereichen.
Der Campus Berlin Nord ist Teil dieses lebendigen Gewerbegebiets und bietet bereits 7.800 m² Büro-, Kommunikations- und Gewerbeflächen in unterschiedlichen Größen und Standards – sofort bezugsfähige Büros – plug and play – auf Wunsch mit Einrichtung verfügbar!
Der Neubau Lessingstr. 83 ergänzt den Campus um 2.860 m² besonders attraktive und hochwertige Büro-, Gastronomie- und Veranstaltungsflächen – Bezug ab März 2023 – jetzt mieten!
Für die geplanten Neubauten Lessingstraße 79a und Lessingstraße 83a liegt bereits die Baugenehmigung vor – es entstehen weitere 2.500 m² Büro- und Gewerbeflächen für unterschiedliche Nutzungen – spezielle Anforderungen für Labore, Industrie 4.0, Sportstudios u.a. sind realisierbar.
Ab April 2023 bietet die Klinke Gastronomie GmbH ein leckeres Lunch und Cafe Angebot sowie Event Räume und Catering auf dem Campus.
Ausstattung
- Flexible Grundrisse:
Raumaufteilung und Gestaltung der Mieteinheiten nach Wunsch, Einzel-, Kombi- und Großraumbüros sind möglich
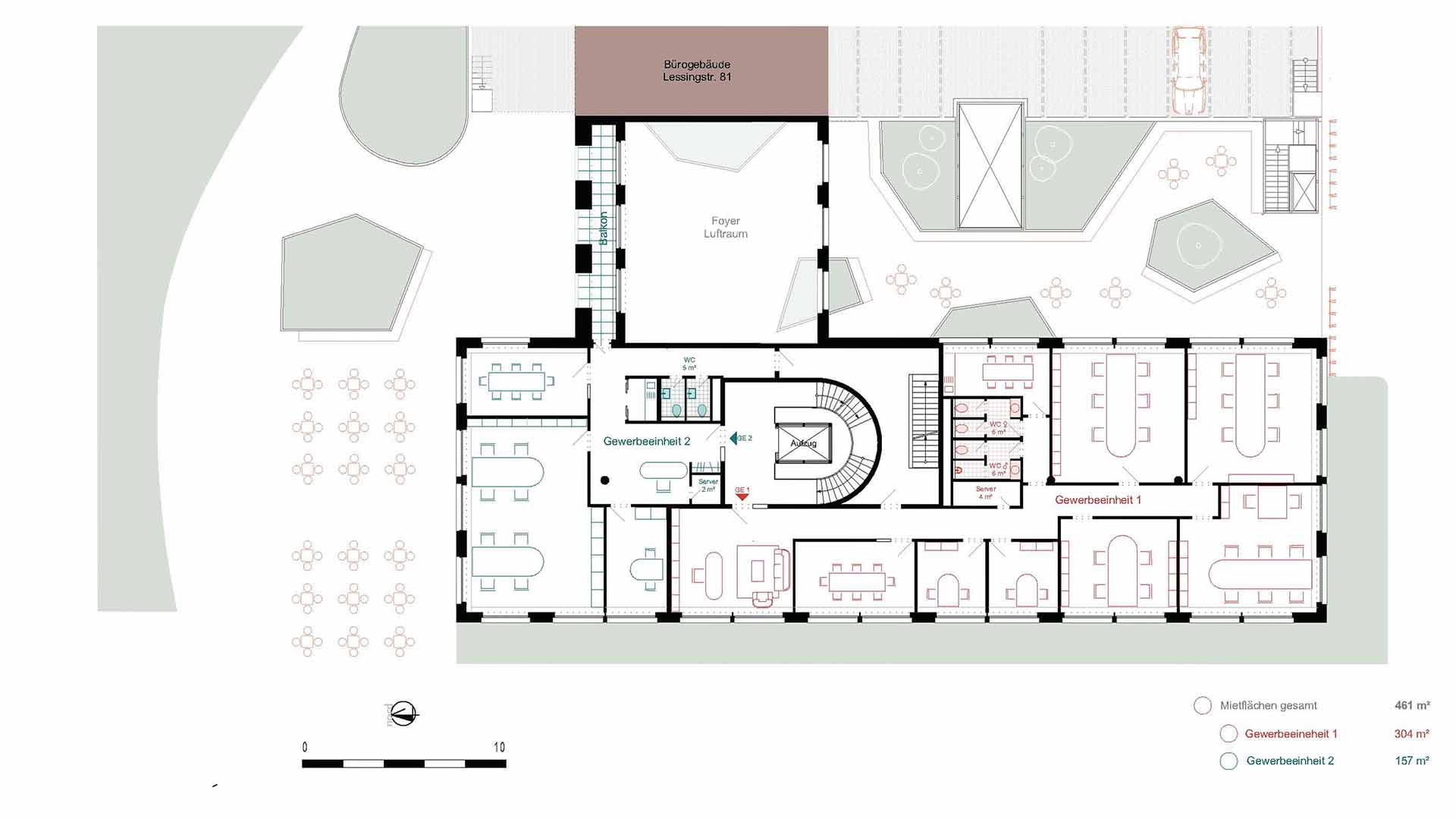
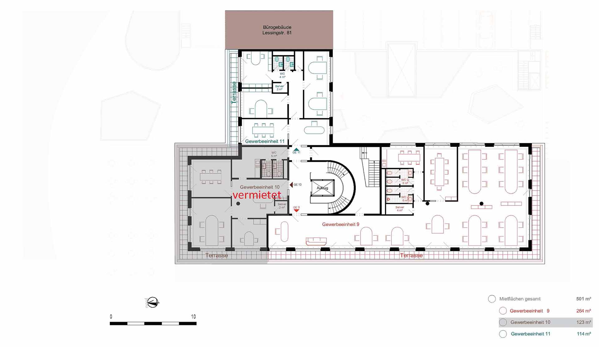
- Teilbar ab 123 qm bis 2.100 qm
- Ausstattung:
- Parkettböden Eiche Vollholz geölt
- Sanitäranlagen
- Teeküchen
- Grundbeleuchtung und Arbeitsplatzinstallation im Brüstungskanal
- EDV-Verkabelung
- Trennwände nach Bedarf
- gesunde und dauerhafte Materialien
- nachhaltige und klimaschonende Bauweise
Zusatzausstattung individuell wählbar:
- abgehängte Decken mit integrierter Beleuchtung
- Akustikelemente
- Glasausschnitte
- Einbaumöbel
- Möbel in Zusammenarbeit mit Einrichtungsunternehmen
- … und vieles mehr
- Highspeed-Internet:
Glasfaseranschluss mit bis zu 1.000 MBit/s
- Kühlung:
Für die Serverräume wird eine zentrale Kühlanlage mit einer Leistung von ca. 2 kW je Büroeinheit vorgehalten – Umluftkühler optional.
- Günstige Betriebs- und Heizkosten:
Das Gebäude ist nach den Grundsätzen einer sparsamen, ökologischen und zugleich leistungsorientierten Betriebsführung errichtet. Es wurden besonders verbrauchsmindernde und sparsame Anlagen eingebaut. Die Mieteinheiten sind mit Verbrauchsmessgeräten für Wasser und Wärme ausgestattet.
- Barrierefreier Zugang
Aufzug und rollstuhlgerechtes WC für alle Mieteinheiten
-
- Gute Verkehrsanbindung:
Mit zwei Buslinien ist der Campus sehr gut an den ÖPNV angebunden. Der nächste S-Bahnhof ist Wilhelmsruh, der Alexanderplatz ist in 16 Minuten erreichbar. Die Niederbarnimer Eisenbahn AG (NEB) nimmt 2024 vor dem Campus einen Haltepunkt der Heidekrautbahn (RB27) in Betrieb, die Schorfheide, Wandlitz, Basdorf u.a. mit dem S-Bhf. Wilhelmsruh verbindet.
Der Campus liegt direkt am Fahrradweg entlang der eh. Berliner Mauer. Es sind ca. 50 Fahrradstellplätze vor dem Haus und gesicherte Stellplätze im Untergeschoss vorhanden.
Der nächste Autobahnanschluss ist in ca. 15 Minuten erreichbar – schnelle Verbindung zum Autobahnring und nach Hamburg.
Zum Campus gehören 102 Pkw-Stellplätze, davon 44 Außenstellplätze und 58 Stellplätze in den Untergeschossen. Ca. 20 Stellplätze werden mit E-Ladesäulen ausgestattet.
- Gute Verkehrsanbindung:
- Günstige Mietpreise
- Bestandsbüro Lessingstr. 79 / 81 – Miete ab 10 € / m² netto kalt zuzüglich Umsatzsteuer
- Neubau Büro Lessingstr. 83 – Miete ab 14 € / m² netto kalt zuzüglich Umsatzsteuer
- Anmietung ohne Umsatzsteueroption auf Anfrage
Jetzt Besichtigungtermin vereinbaren
Tel: 030 6177 6840
Schreiben Sie uns
Ansprechpartner
Klinkenberg Architekten
Köpenicker Straße 8
10997 Berlin-Kreuzberg
hausverwaltung@klinkenberg-architekten.de
Telefon
030 6177 6840














